Проект одноэтажного каркасного дома ДК-13
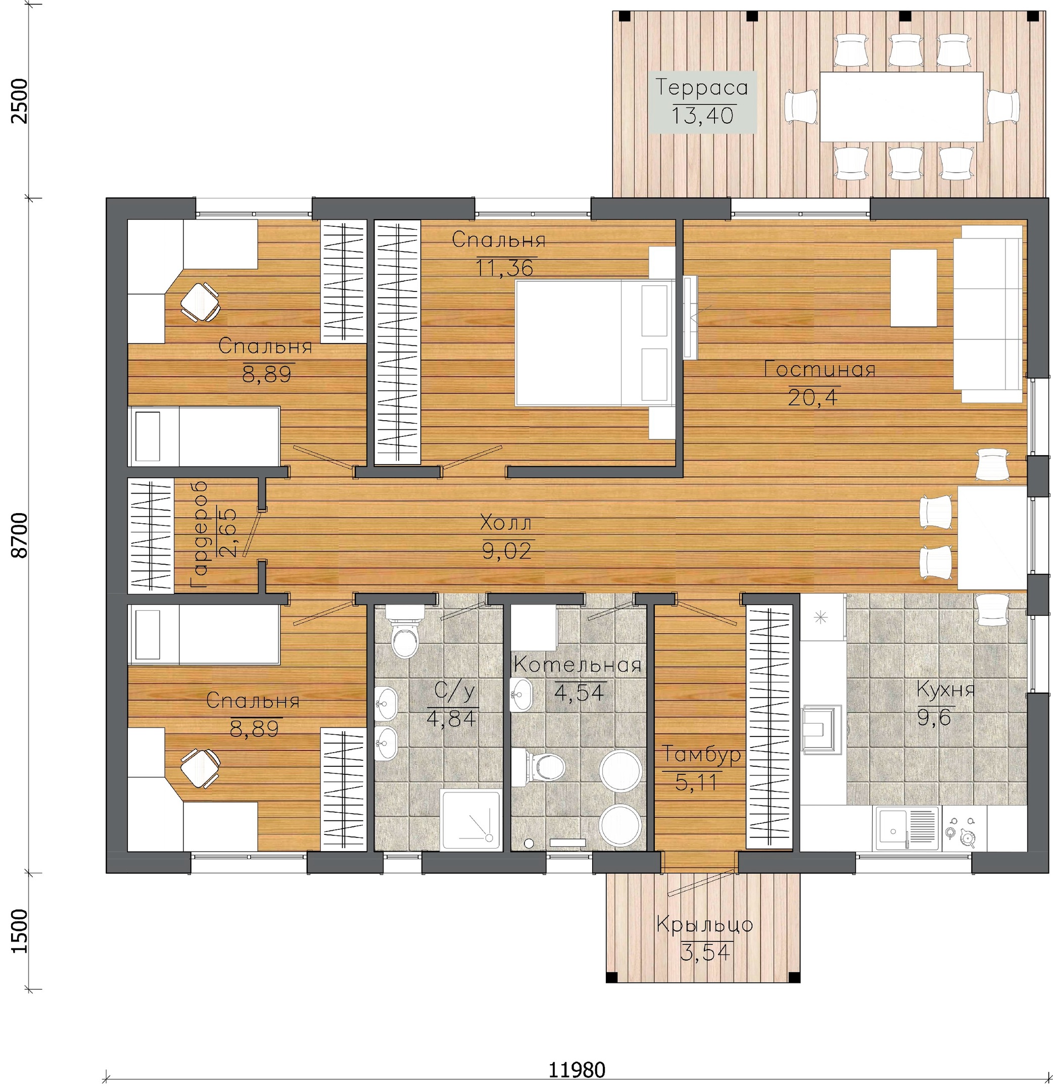
Общая площадь 85.3 м²
Современный одноэтажный каркасный дом
Общая площадь: 85.3м2
Размер: 11,9 х 8,7 м
Количество спален: 3
Количество санузлов: 1
Кухня, гостиная, гардеробная
Терраса: 13.40 м2
Гарантия на силовой каркас
1 этаж
В любой из наших проектов можно внести изменения внутренней планировки и дополнений к внешнему ввиду.
Общая площадь: 85.3 м2
Размер: 11,9 х 8,7 м
1 Спальня: 8.89 м2
2 Спальня: 11.36 м2
3 Спальня: 8.89 м2
1 Санузел: 4.843 м2
Кухня: 9.6 м2 Гостиная: 20.4 м2
Гардеробная: 2.65 м2
Гардеробная: 2.65 м2
Терраса: 13.40 м2
Гарантия на силовой каркас
Комплектации домов:
Мы рассчитаем стоимость в любой комплектации под ваши пожелания
«Теплый контур»
- Силовой каркас из доски сухой строганной 45х145/195 мм
- Эффективное утепление 200 мм
- Наружная отделка окрашенная имитация бруса
- Кровельное покрытие металлочерепица
- Двухкамерные стеклопакеты 70 мм
- Закрытый пароизоляционный контур
- Фундамент Ж/Б сваи
«Вайт бокс»
- Силовой каркас из доски сухой строганной 45х145/195 мм
- Эффективное утепление 200 мм
- Наружная отделка окрашенная имитация бруса
- Кровельное покрытие металлочерепица
- Двухкамерные стеклопакеты 70 мм
- Закрытый пароизоляционный контур
- Фундамент Ж/Б сваи
- Инженерные коммуникации: электрика, отопление, водоподготовка, канализация (биостанция)
- Предчистовая отделка стен
Аккредитованы в Сбербанке
Поможем получить
ипотеку от 6% на
строительство по самым
выгодным условиям
100% одобрение заявки в течение недели
Подготовим все документы и подадим заявку
в одном из наших банков-партнеров
в одном из наших банков-партнеров
Обзоры процесса сборки
наших каркасных домов
Обзоры процесса сборки наших каркасных домов
Понравился проект дома?
Рассчитайте стоимость проекта.
Рассчитайте стоимость проекта.
Заполните все поля и наш менеджер свяжется
с вами в ближайшее время
с вами в ближайшее время
Есть вопросы? Свяжитесь с нами
Наши контакты
Звоните, ответим на все вопросы,
скажем примерную стоимость.
скажем примерную стоимость.
Адрес:
г. Великий Новгород,
проезд Энергетиков, д. 6.
проезд Энергетиков, д. 6.
Телефон:
nkstroi.nov@yandex.ru
Оставьте заявку на бесплатную консультацию
Напишите нам в Telegram
Или оставьте заявку на звонок
Есть вопросы? Свяжитесь с нами
Подробно ответим на все
интересующие вопросы
Наши контакты
Адрес:
г. Великий Новгород,
проезд Энергетиков, д. 6.
проезд Энергетиков, д. 6.
Телефон:
nkstroi.nov@yandex.ru
Звоните, ответим на все вопросы,
скажем примерную стоимость.
скажем примерную стоимость.
Оставьте заявку
на бесплатную консультацию
на бесплатную консультацию
Напишите нам в Telegram
Или оставьте заявку на звонок